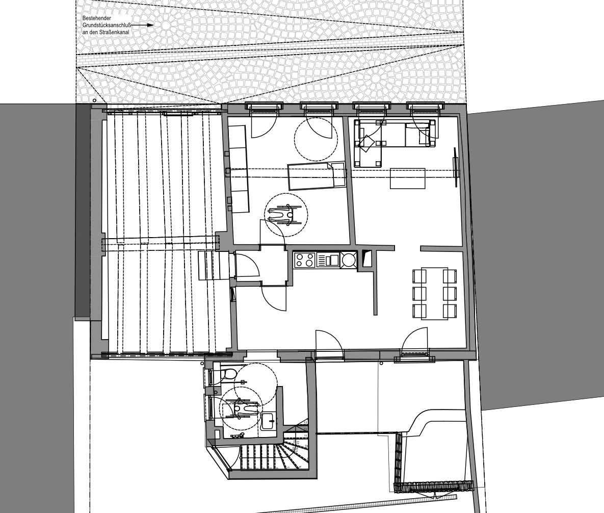
UMBAU UND SANIERUNG EINES FACHWERKHAUSES VON 1575 ZU EINEM MEHRFAMILIENHAUS
LEISTUNGEN: LPH 1 BIS LPH 8
LAGE: LEIMEN (BADEN)
BAUZEIT: 2021 – 2023
BGF: ~ 275 m2

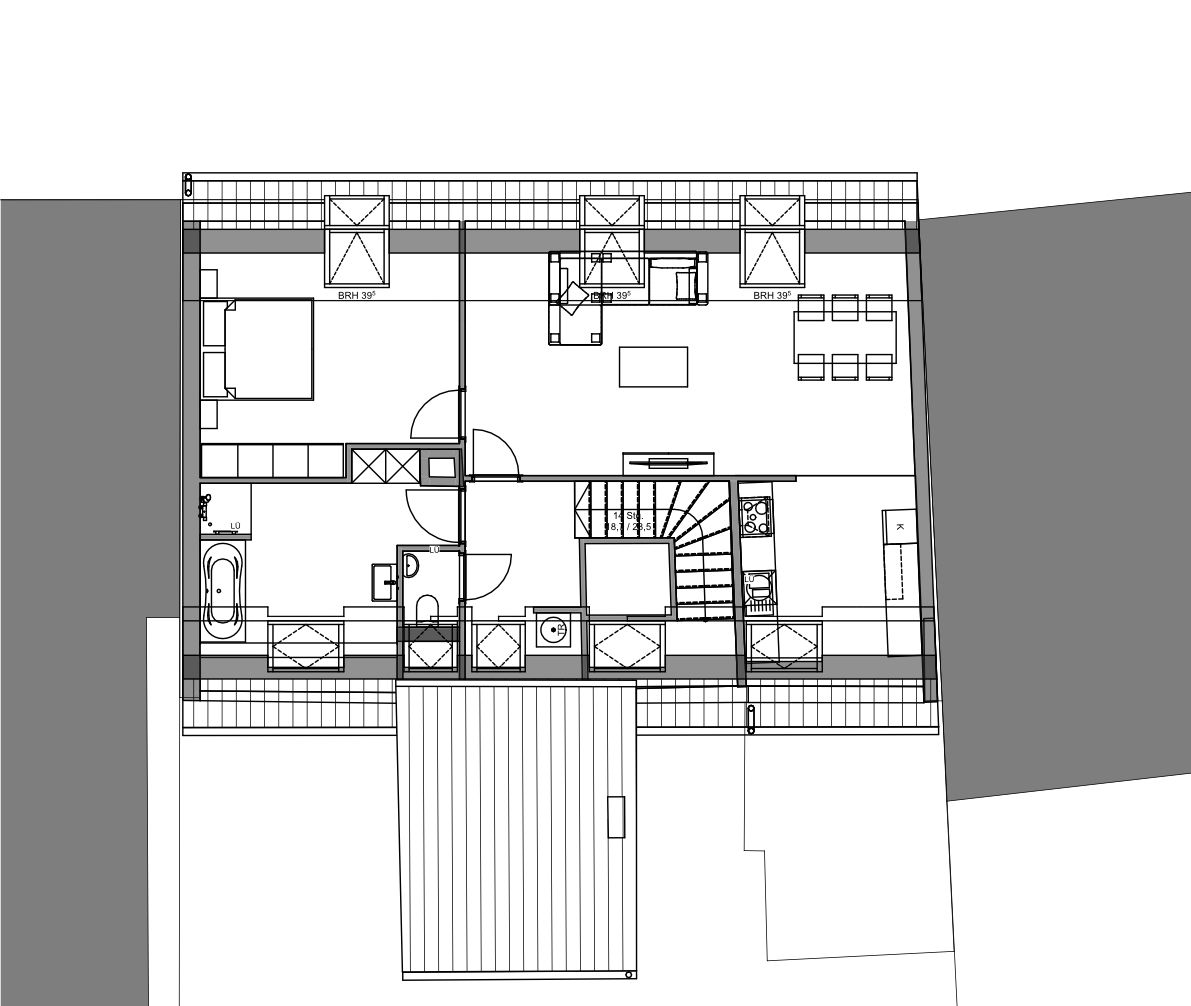
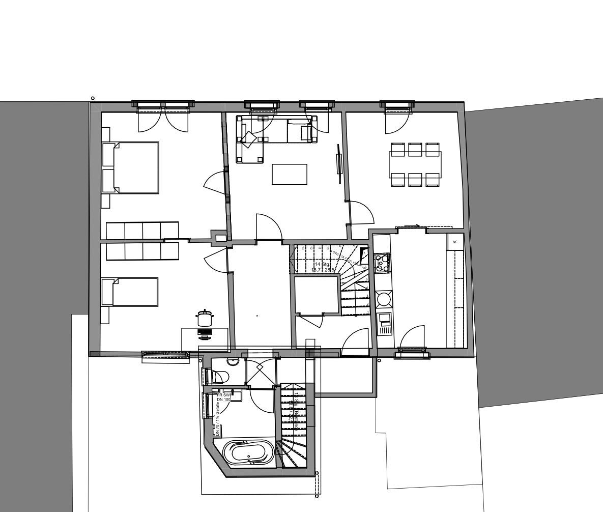
UMBAU UND SANIERUNG EINES FACHWERKHAUSES VON 1575 ZU EINEM MEHRFAMILIENHAUS
LEISTUNGEN: LPH 1 BIS LPH 8
LAGE: LEIMEN (BADEN)
BAUZEIT: 2021 – 2023
BGF: ~ 275 m2