Wohnhaus für eine junge Familie am Rand des inneren Ortskerns von Schifferstadt
LEISTUNGEN: LPH 1 BIS LPH 8
LAGE: Schifferstadt
Bauzeit: 2013
BGF: ~160 m2
Projektdetails
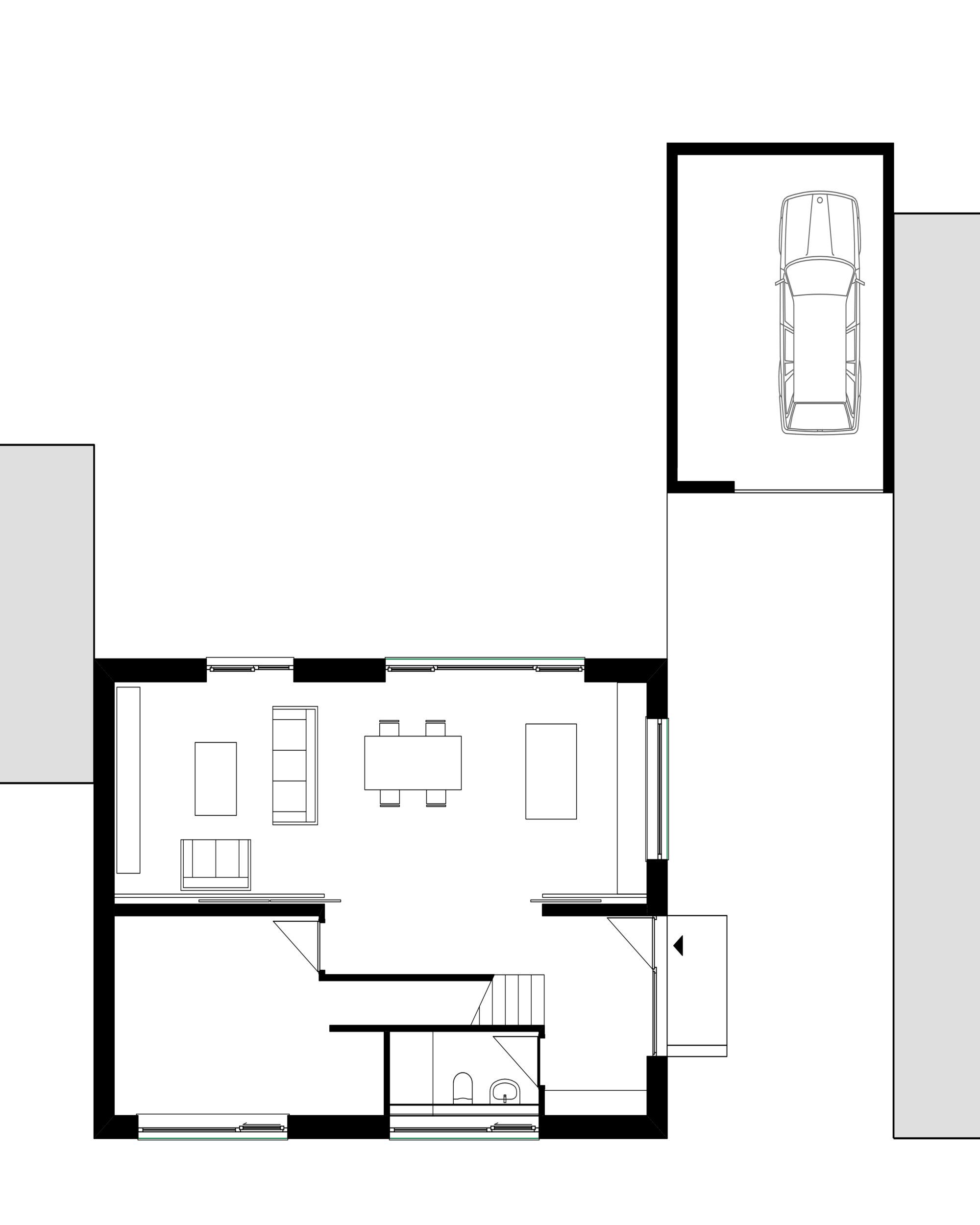
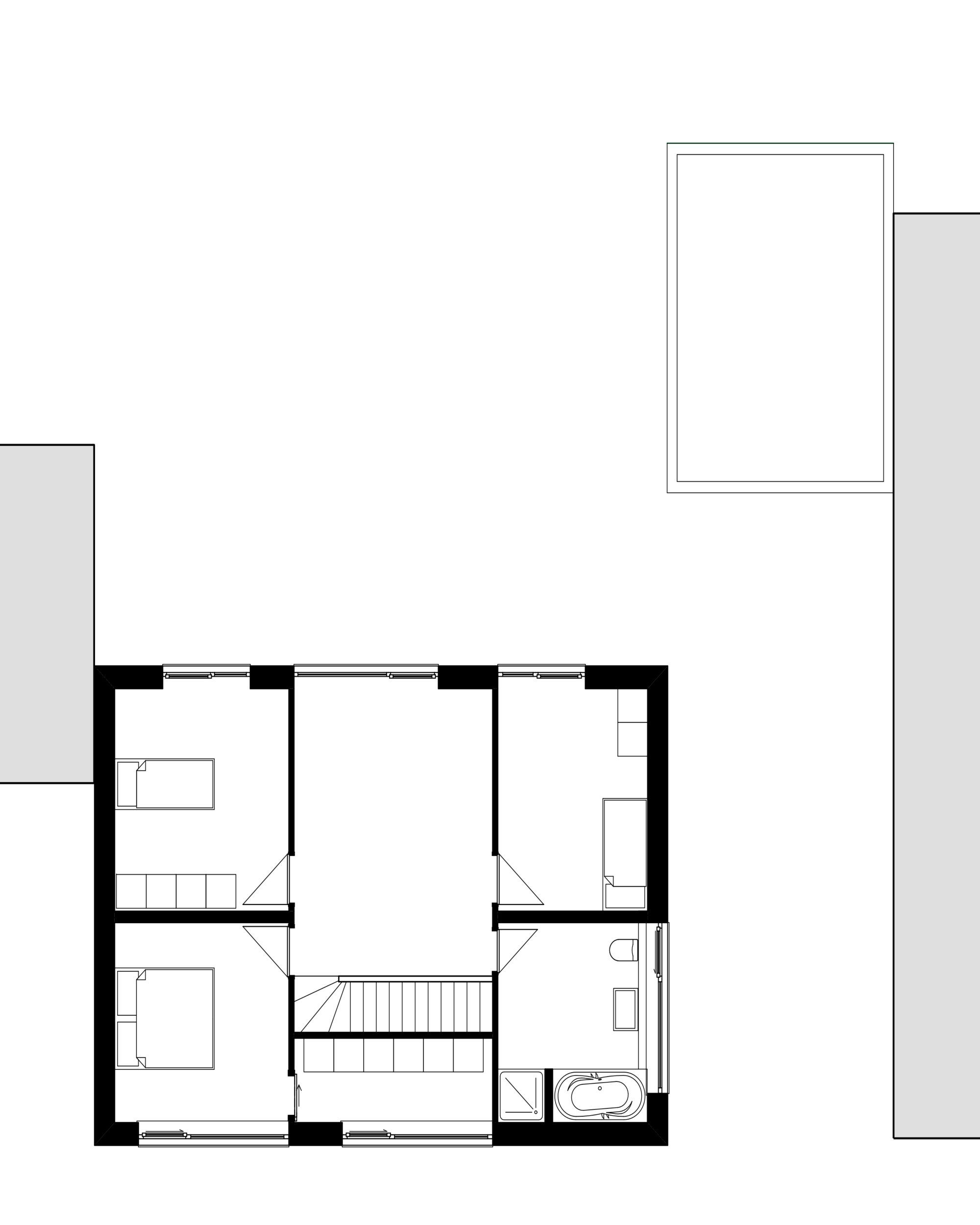
Das Gebäude besitzt eine klare innere Trennung. Alle Nebenräume sind nach Norden zur Strasse angeordnet. Die Öffnungen in diese Richtung sind auf das Notwendigste reduziert. Die Treppe liegt mittigen Längsrichtung und bildet den Teiler. Nach Süden öffnet sich das Gebäude, holt über große bodentiefe Fenster das Licht in den Innenraum. Durch die hohen Räume reicht das Sonnenlicht bis in die Tiefe des Gebäudes.
Durch die offene Raumanordnung entstehen fließende Räume die durch Schiebeelemente variabel verändert werden können.
