Neubau eines privaten Wohnhauses in Weisenheim
LEISTUNGEN: LPH 1 BIS LPH 8
Weisenheim am Sand
Bauzeit: 2010
BGF: ~180 m2
PROJEKTINFO
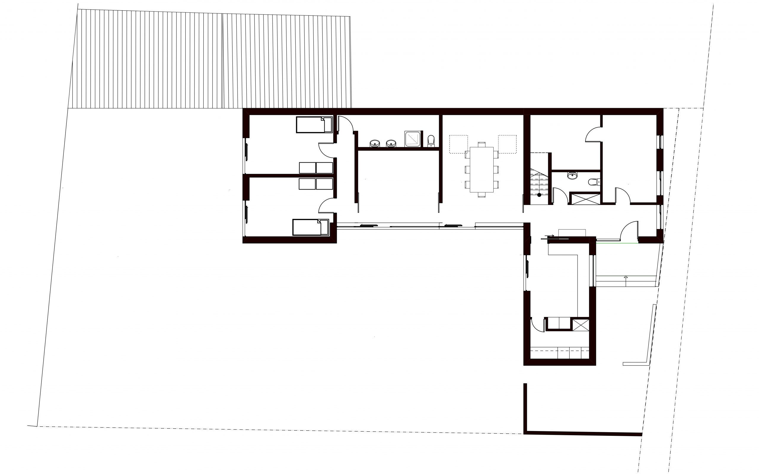
Neubau eines Einfamilienhauses im Ortskern von Weisenheim am Sand. Die Dimension des Haupthauses orientiert sich an der umgebenden Bebauung. Die Größe des Grundstücks ermöglicht es Wohn- und Esszimmer sowie die Kinderzimmer entlang der nördlichen Grundstücksgrenze zu entwicklen während die Küche und der angegliederte Carport das Grundstück von der Straße her abschotten.
Das nicht unterkellerte Gebäude ist in Brettstapel-Holzbauweise erstellt und erfüllt mit seinem WDVS aus Holzwolle nahezu den Passivhaus-Standard. Die begrünten Flachdächer sorgen einerseits für eine natürliche Temperieren des Innenraums und nehmen gleichzeitig die PV- und die Solarthermie-Anlagen auf.
Die großzügige, nach Süden ausgerichtete Verglasung sorgt für die natürliche Belichtung der Räume während das Vordach im Sommer die Glasflächen optimal verschattet.
Durch die offene Struktur des Gebäudes und die Integration der Bewegungsflächen in die Wohnfläche werden die Räume optimal ausgenutzt. Raumhohe Schiebeelemente öffnen und trennen die Räume ohne dass störende Türen den Raumfluss behindern.
Ein wesentliches und immer wieder aufgenommenes Desginkonzept unseres Architekturbüros ist die enge Verzahnung von Garten und Wohnraum durch großzügige Verglasung und verschiebliche Raumelemente.
